【產品用途】
H64Y 型 1500(Lb)~2500(Lb) 高溫對焊止回閥適用于 Class1500~2500Lb,工作溫度 -29~570℃ 的石油、化工、火力電站等各種工況的管路上。
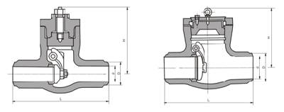
【H64Y-1500Lb 主要外形和連接尺寸】
稱通徑PNS(in)
|
外形尺寸和連接尺寸
|
重量
|
d
|
L
|
H
|
2月21日
|
50
|
330
|
240
|
40
|
3
|
60
|
368
|
305
|
60
|
4
|
80
|
457
|
315
|
95
|
5
|
96
|
533
|
409
|
170
|
6
|
118
|
610
|
465
|
186
|
8
|
147
|
762
|
528
|
415
|
10
|
180
|
914
|
613
|
658
|
12
|
222
|
1041
|
680
|
1200
|
14
|
254
|
1118
|
745
|
1638
|
【H64Y-2500Lb 主要外形和連接尺寸】
公稱通徑PNS(in)
|
外形尺寸和連接尺寸
|
重量
|
d
|
L
|
H
|
3
|
54
|
368
|
297
|
44
|
4
|
70
|
457
|
385
|
110
|
5
|
86
|
533
|
410
|
130
|
6
|
104
|
610
|
455
|
192
|
8
|
130
|
762
|
557
|
466
|
10
|
162
|
914
|
615
|
730
|
12
|
210
|
1041
|
715
|
1120
|
14
|
234
|
1118
|
790
|
1495
|
16
|
264
|
1245
|
815
|
1950
|
18
|
304
|
1397
|
815
|
2400
|
【結構圖片】
